I have started the foundation work for a 4000+ sqft House. I intend to use AAC HD blocks. I am not the structural expert. The house is a G+1 structure with terraced roof and shingles.... Being planned.
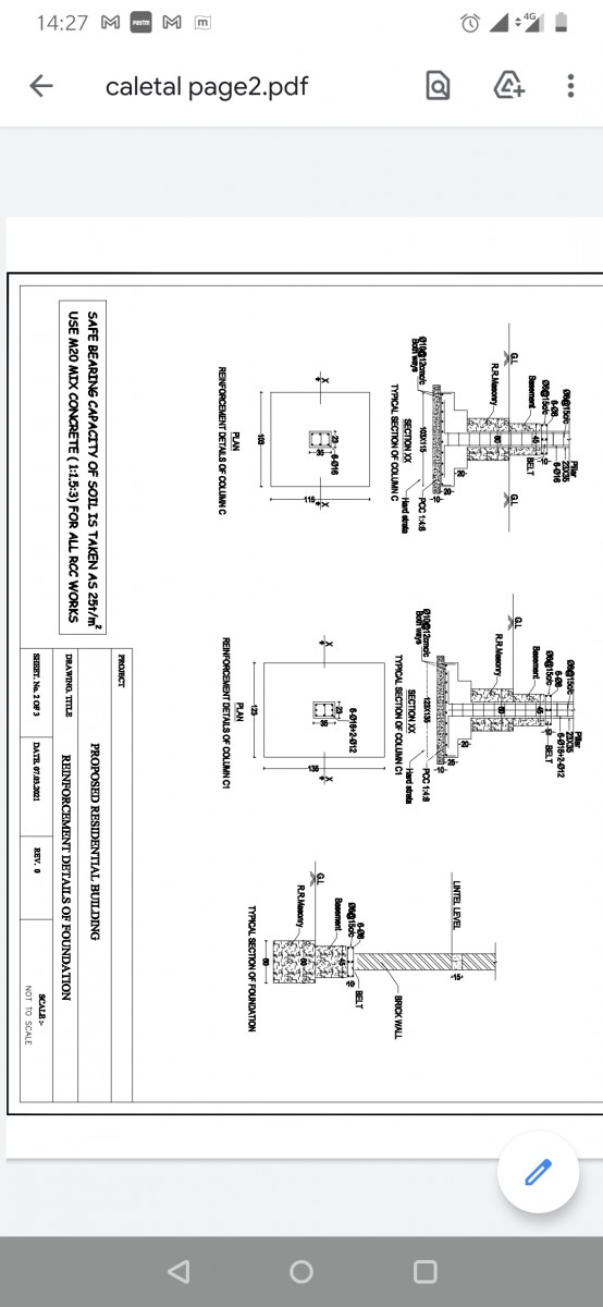
The soil is hard laterite soil. About 75percent of the structure is supported by pillars and the rest without pillars.
I was given to understand that the steel required for a AAC structure would be 30 percent less than one using concrete. But my stuctural engineer has advised me to actually increase the steel.
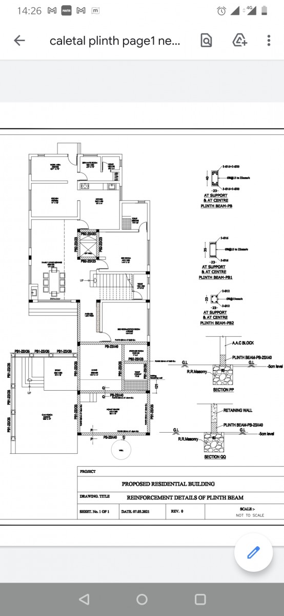
The normal column in a G+1 structure uses column size of 22.5 *30 using 6 bars of 12mm and 8 mm steel rings.
Our columns are 23*35 using 6 bars of 16mm and steel ring of 6mm.
Is this because of AAC blocks which are supposed to put less load on the structure or is it a G+2 structure. Or do we commonly use 16mm steel.
Similarly for the beams . Our main beam again utilises 16mm . Usually beams use a combination of 10mm and 12mm.
Let me clarify that I am not the expert nor have I discussed such details with anyone else.
In choosing AAC, I was under the impression that loads will be less. That was based on my non professional studies on the subject
So was slightly surprised to see 16mm being used commonly.
It would be extremely helpful if someone with knowledge on construction using AAC blocks could clarify the above. I just need to convince myself that we are not overdoing it.
Thanking you,
Bijoy Chirayath
AAC block house structural design doubts
Re: AAC block house structural design doubts
Not a structural expert, but having used both AAC and regular blocks in my home, let me give some inputs.
AAC blocks are much longer in length than regular blocks. Helps speed up brick laying (though brick laying isn't a very time consuming job, relatively). If you are going for a good brand like Ultratech, you need to order significant quantity and have to wait weeks.
AAC blocks are easy shift to higher floors
AAC blocks cannot be cut/chipped easily (for those half/quarter blocks), they are usually cut using a wood cutting saw or mechanised saw.. you will lose some productivity here
AAC blocks cost about 2 times that of regular blocks. What you save in steel, you will end up spending here, more or less.
Loss during transportation/loading etc , the loss is an average 10%
Have noticed more break/cracks/loss during cutting and chipping (electrical and plumbing)
Plaster doesn't stick very well, due to smooth surface (though there are way patterns on the top of it, these patterns aren't deep enough to hold cement)
People do not feel very secure using it in ground floor, someone can break in very easily..
AAC blocks are much longer in length than regular blocks. Helps speed up brick laying (though brick laying isn't a very time consuming job, relatively). If you are going for a good brand like Ultratech, you need to order significant quantity and have to wait weeks.
AAC blocks are easy shift to higher floors
AAC blocks cannot be cut/chipped easily (for those half/quarter blocks), they are usually cut using a wood cutting saw or mechanised saw.. you will lose some productivity here
AAC blocks cost about 2 times that of regular blocks. What you save in steel, you will end up spending here, more or less.
Loss during transportation/loading etc , the loss is an average 10%
Have noticed more break/cracks/loss during cutting and chipping (electrical and plumbing)
Plaster doesn't stick very well, due to smooth surface (though there are way patterns on the top of it, these patterns aren't deep enough to hold cement)
People do not feel very secure using it in ground floor, someone can break in very easily..
Re: AAC block house structural design doubts
I have only heard negative reviews on AAC blocks. Smooth bricks are not recommended for plastering. Also it is light weight but not strong enough compared to other cement blocks. Avoid AAC blocks. It's just not worth the pain.
Please do go with peoples experience than engineers in few important things. Not all engineers* give right advice and sometimes give it due to malafied intentions(very common in construction industry).
PS: Not all does not mean all.
Please do go with peoples experience than engineers in few important things. Not all engineers* give right advice and sometimes give it due to malafied intentions(very common in construction industry).
PS: Not all does not mean all.
Re: AAC block house structural design doubts
Thank you for your advice.
Will definitely look into it.
In this case the choice was mine and mine alone.
Just that there seems to be little solid help and guidance in the use of AAC blocks for a normal house construction.
Will definitely look into it.
In this case the choice was mine and mine alone.
Just that there seems to be little solid help and guidance in the use of AAC blocks for a normal house construction.