Hi All,
I had attached the first floor plan on 9X12 meter North facing site. My plan is to construct first floor 2BHK now for own use. Based on the first floor design 1BHK will be planned on ground floor ( Not for own use ) with 2 car parking. Foundation would be G+2 as I might extend to duplex or separate second floor once the kids are grown up ( now they are 10 and 6 years) . I had attached the first floor plan draft. Currently I am planning a metal staircase from the utility as i donot find any suitable position (metal or cement) in front without reducing the size of the room and hall. Marked yellow would be the future stair case location ( after removing the wall ). I need bigger hall (including Dinning also fine as mentioned ) and sofa needs be on L shape along with the wall. Sofa arrangement is like that because i need clear usable big area. Thinking of L shape hall and Dinning fine but not able get that option in North facing site. Let me know your opinion on stair case location and overall plan.
Regards,
sbhat
Need Suggestion on Building Plan
Need Suggestion on Building Plan
- Attachments
-
- myPlan1.pdf
- (146.32 KiB) Downloaded 757 times
- ardesarchitects
- Posts: 1080
- Joined: June 20th, 2009, 2:12 pm
Re: Need Suggestion on Building Plan
Hi sbhat
Few observation from functional perspective .
1. Moving main door will give bigger Tv space with out compromise on sofa .
2. Large balcony to reach the existing door in the corner is of no use as the balcony width is very less you cannot keep even a shoe rack there.
3. Re-organizing master bed room gets more space for wardrobe and study table included on the same side.
4. Future option for internal stairs can be common toilet area than the one you marked because there will be beam issue later.
Regards,
Ar.Praveen.N
Ardes Architects and Interior designers
ardesarchitects@gmail.com
www.ardesarchitects.com
https://www.instagram.com/ardesarchitects
Few observation from functional perspective .
1. Moving main door will give bigger Tv space with out compromise on sofa .
2. Large balcony to reach the existing door in the corner is of no use as the balcony width is very less you cannot keep even a shoe rack there.
3. Re-organizing master bed room gets more space for wardrobe and study table included on the same side.
4. Future option for internal stairs can be common toilet area than the one you marked because there will be beam issue later.
Regards,
Ar.Praveen.N
Ardes Architects and Interior designers
ardesarchitects@gmail.com
www.ardesarchitects.com
https://www.instagram.com/ardesarchitects
- Attachments
-
- ardes architects r1 28-04-2020.JPG (105.04 KiB) Viewed 9480 times
Re: Need Suggestion on Building Plan
Hi Praveen,
Thanks for your suggestion.
Initially I thought of your suggestion moving the main door as you had suggested. In that case the Pooja room will looks separate. If i keep sofa as in my design then sofa would have covered the most of the pooja room which is 3 feet from the wall. But i did not realize extra TV space. Do you have suggestion on how pooja room can be placed as i did not find the better place than this. Because i wanted person who is worshiping and God face either North or east.
Also let me know what is the disadvantage of having staircase from the ground floor on east side. I want main door should open in living area.
I will work on Point 3 and 4.
Regards,
sbhat
Thanks for your suggestion.
Initially I thought of your suggestion moving the main door as you had suggested. In that case the Pooja room will looks separate. If i keep sofa as in my design then sofa would have covered the most of the pooja room which is 3 feet from the wall. But i did not realize extra TV space. Do you have suggestion on how pooja room can be placed as i did not find the better place than this. Because i wanted person who is worshiping and God face either North or east.
Also let me know what is the disadvantage of having staircase from the ground floor on east side. I want main door should open in living area.
I will work on Point 3 and 4.
Regards,
sbhat
Re: Need Suggestion on Building Plan
A couple of points to remember is
- What experience you would undergo when there are building all the sides except roadside.
- If you are planning to have internal duplex make only one room on First floor.
- Have a big hall and have steped flooring to get sense of big space. You would love it.
- On the east side, have an small indoor Garden.
Lastly, if you don't mind get inspirations from below youtube link and understand how to play with Light, Air and water.
https://youtu.be/SpxGXIH14ZM
Regards,
Venky
- What experience you would undergo when there are building all the sides except roadside.
- If you are planning to have internal duplex make only one room on First floor.
- Have a big hall and have steped flooring to get sense of big space. You would love it.
- On the east side, have an small indoor Garden.
Lastly, if you don't mind get inspirations from below youtube link and understand how to play with Light, Air and water.
https://youtu.be/SpxGXIH14ZM
Regards,
Venky
Re: Need Suggestion on Building Plan
Hi venkyn ,
Thanks for your input.
Regards,
Thanks for your input.
Regards,
- ardesarchitects
- Posts: 1080
- Joined: June 20th, 2009, 2:12 pm
Re: Need Suggestion on Building Plan
Hi Sbhat,sbhat wrote: April 29th, 2020, 9:33 pm Hi Praveen,
Thanks for your suggestion.
Initially I thought of your suggestion moving the main door as you had suggested. In that case the Pooja room will looks separate. If i keep sofa as in my design then sofa would have covered the most of the pooja room which is 3 feet from the wall. But i did not realize extra TV space. Do you have suggestion on how pooja room can be placed as i did not find the better place than this. Because i wanted person who is worshiping and God face either North or east.
Also let me know what is the disadvantage of having staircase from the ground floor on east side. I want main door should open in living area.
I will work on Point 3 and 4.
Regards,
sbhat
All the suggestions i was giving is only to make the plan more efficient out of your design only. To get intresting features like courtyard / green spaces /skylights etc you need to approach the plan in fresh completely .
1. Pooja room in the current location is better as its not taking away the large look of your living room connecting to dinning & kitchen ( in case you want it semi open with out loosing the north wall counter )
2. Moving stairs to east side will change the configurations in total and effect the landing space in front of main door .
3. In the previous suggestions i marked, the main door is opening in to living room only.
Regards,
Ar.Praveen.N
Ardes Architects and Interior designers
ardesarchitects@gmail.com
www.ardesarchitects.com
https://www.instagram.com/ardesarchitects
Re: Need Suggestion on Building Plan
Hi Praveen and All,
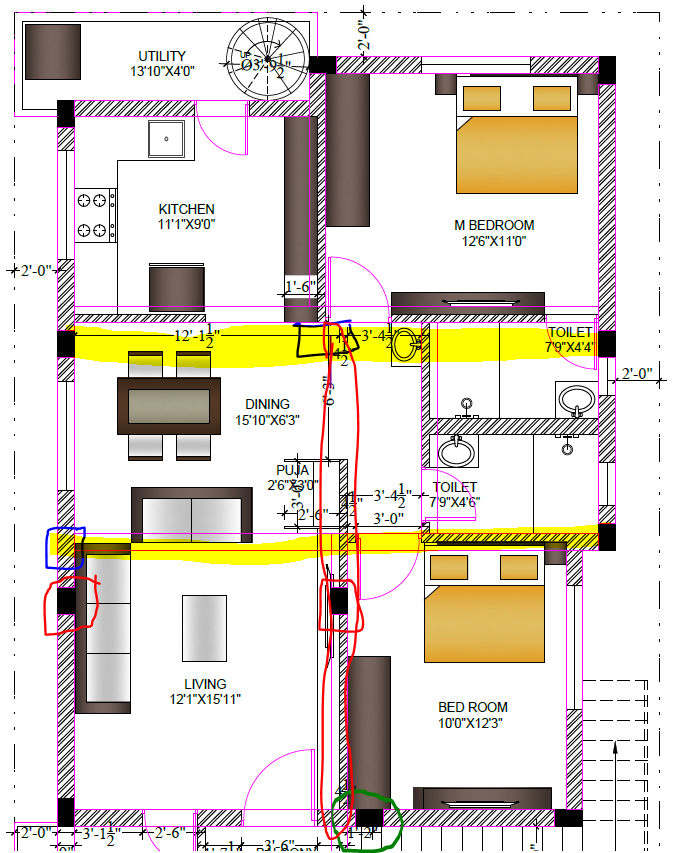
Thanks for your suggestion. Due to COVID there was delay. Due to clear height issue we had to cut the first flooring bit in west side. Accordingly adjusted the other dimension. Now i had received the beam and column position. Attached.
1. I feel the column marked red can be removed to get the clear space at ground floor.
2. Due to point 1 introduce new column at marked Blue and having the bigger and stronger beam ( marked Yellow). Along with the red line ( north to south ) can have concealed beam.
3. I am not sure if the column can be removed or moved towards west further by making the beam bigger/stronger
Please provide your input.
Do you see any issue what I am thinking will give issue if I need to extend the house to duplex from first floor in future
Regards,
sbhat
Thanks for your suggestion. Due to COVID there was delay. Due to clear height issue we had to cut the first flooring bit in west side. Accordingly adjusted the other dimension. Now i had received the beam and column position. Attached.
1. I feel the column marked red can be removed to get the clear space at ground floor.
2. Due to point 1 introduce new column at marked Blue and having the bigger and stronger beam ( marked Yellow). Along with the red line ( north to south ) can have concealed beam.
3. I am not sure if the column can be removed or moved towards west further by making the beam bigger/stronger
Please provide your input.
Do you see any issue what I am thinking will give issue if I need to extend the house to duplex from first floor in future
Regards,
sbhat
- Attachments
-
- beam.PNG (135.95 KiB) Viewed 6749 times