Constructing my Dream Home

Post Reply
Naveenraj123
Posts: 73
Joined: August 31st, 2016, 11:46 pm

Constructing my Dream Home

Post by Naveenraj123 »

Hello everyone,

I've been quite the silent spectator in this group from many years, i started constructing my dream home from November 2021.. currently internal plastering is going on...

I will outline my experience so that few members may benefit out of this info

I hired Brick n Bolt but didn't take their usual plans instead insisted on a customized BOQ (Bill of quantity)

The contractor assigned to me is geniune and open to new ideas

Here is the list of materials I'm using

Cement - Birla Super throughout except plastering where I'm using 43 grade PPC

Steel - A1 Gold, 550D

M sand - Triveni m sand.. one of the best in market

Blocks - Apco 6"

My residence is a 4 bedroom Duplex Villa ..

Site measurement - 32' * 64' north facing,

Location - Jalahalli West

Estimated cost - 1 cr without interiors and Lift

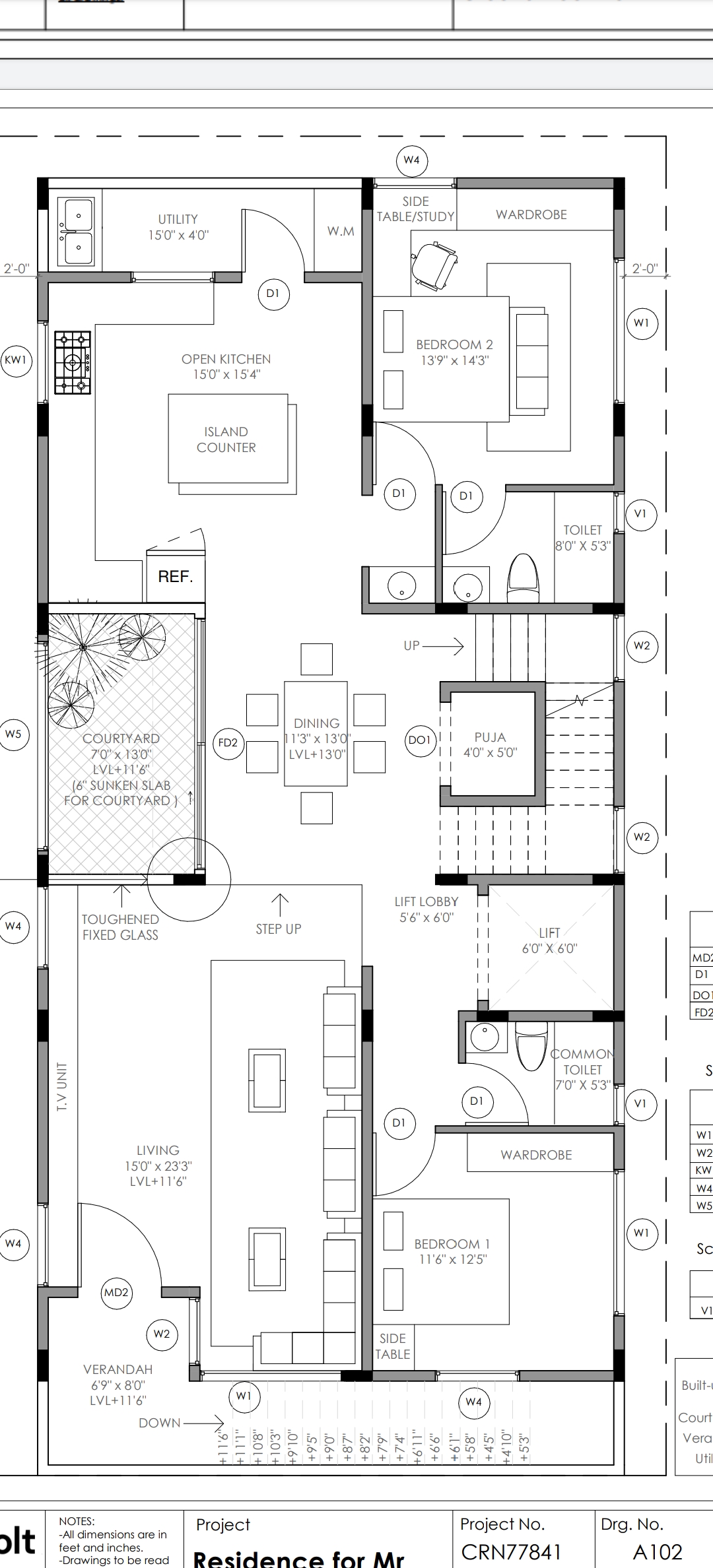
Plan attached

Ground floor - Parking area - 1500 sq feet , one servant quarters of approx 275 sq feet
Ground floor
Ground floor
First floor - Verandah, Living Room, 1 parents bedroom and 1 guest bedroom, Pooja, kitchen, utility room and courtyard with Water space
First floor
First floor
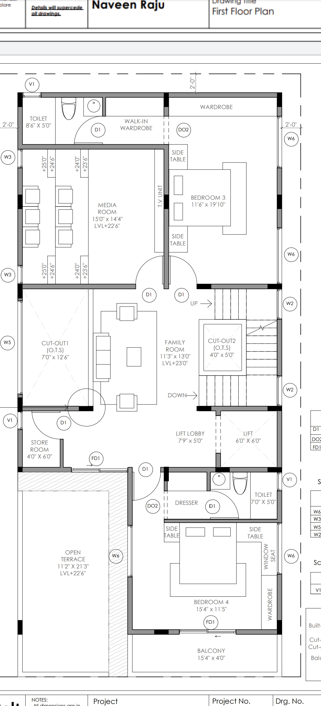
Second floor - master bedroom, kid bedroom, home theatre and family room
Second floor
Second floor
Lower Terrace - Lounge and Bar , Washing machine room, UPS room, Powder room and Landscape garden

Upper terrace - Overhead tank with room, Lift room and Solar panels space
Naveenraj123
Posts: 73
Joined: August 31st, 2016, 11:46 pm

Re: Constructing my Dream Home

Post by Naveenraj123 »

Adding on...

Few changes very minor but aesthetically appealing changes have been done to the afore mentioned plan,

Attaching draft 3D elevation, it's not final yet..

Planning to use stonelam instead of HPL for facade.. and plan to use lots of MS Jali CNC cut along with terracota ...

Sump is of 12500 litres, Lift is of Usha make ,
Attachments
IMG-20211009-WA0024.jpg
henry
Posts: 11
Joined: January 21st, 2021, 7:22 pm

Re: Constructing my Dream Home

Post by henry »

Hi, May i ask what is your plan for Courtyard in the plan you shared. I am in process of construction and i have some place of around 10*10 left for courtyard.

I was thinking of a indoor water cascade with stone cladding as background and some pots /plants around and some seating area.

Just wanted to get some ideas if you have done..
Thanks
Kumar
Post Reply

Return to “Civil Construction”